252 Fradd East Road Munno Para West SA
Low-Maintenance Lifestyle in a Thriving Neighbourhood
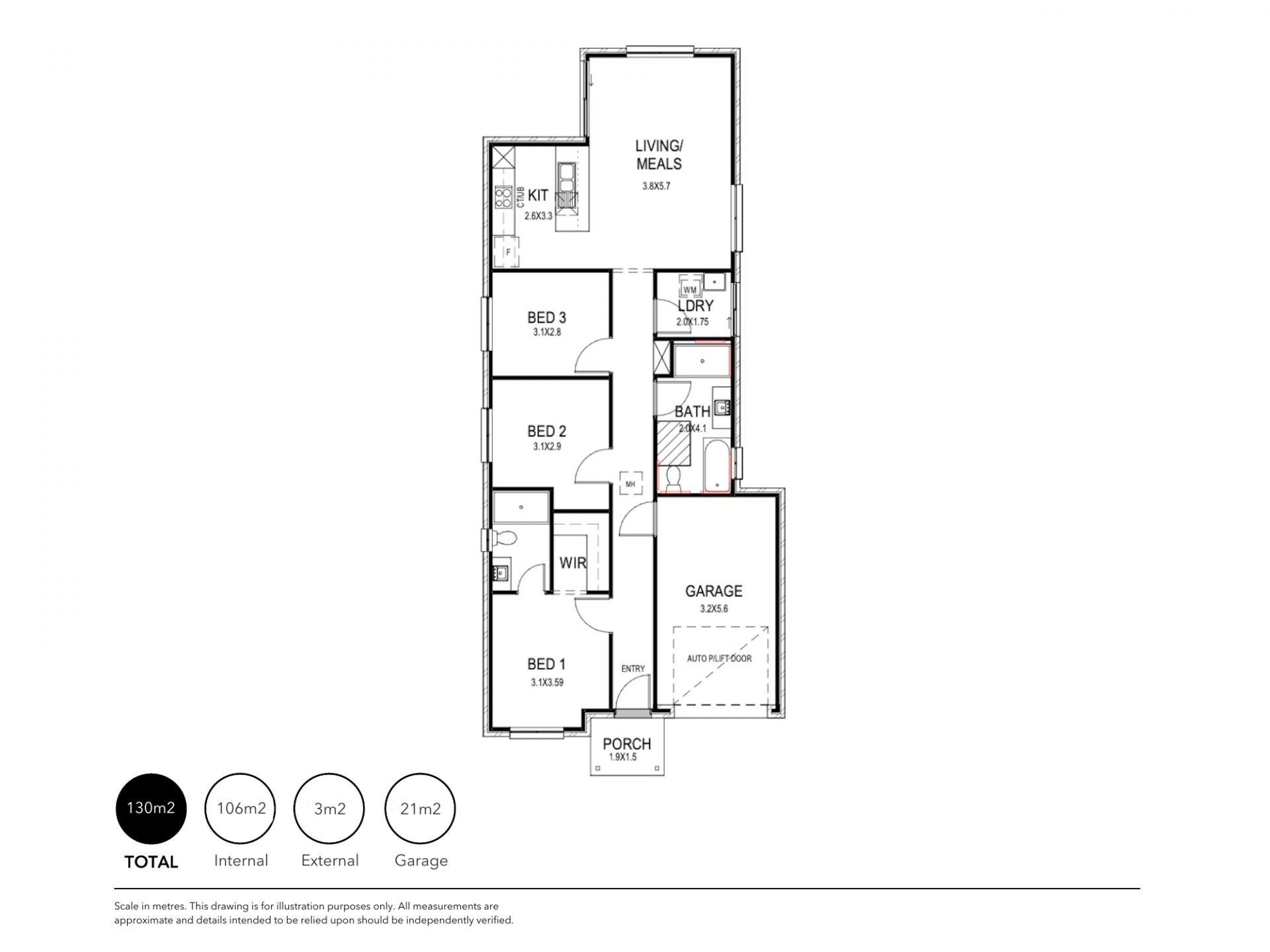
This three-bedroom House & Land Package presents an exciting opportunity for first-home buyers or young families ready to step into a growing community. Set on a 270m² block, the thoughtfully designed floorplan includes well-zoned interiors, quality finishes and convenient access to parks, schools, shops and transport.
The open plan living area is ideal for everyday ease, with the primary bedroom offering a walk-in robe and private ensuite. Designed with style and functionality in mind, this future home includes 2700mm ceilings, a 5kW split system and a landscaped front and rear garden included in the fixed price.
With all the essential features taken care of, from flooring and window coverings to driveway, fencing and paths, this is a low-maintenance lifestyle you can confidently plan for.
Key Features
• House & Land Package on 270m²
• Open plan kitchen, living and meals zone
• Primary bedroom with ensuite and walk-in robe
• 2700mm ceiling height and LED downlights
• Laminate floors to main living areas; carpet to bedrooms
• 5kW split system air-conditioning to living
• Stainless steel appliances including 600mm oven
• Blinds to all windows
• Fully landscaped front and rear gardens
• Fencing, driveway, and concrete paths included
• Dedicated laundry and single garage
• 25-year structural guarantee
Perfectly suited to modern lifestyles, this growing location offers everyday convenience with strong future value. Just minutes from Munno Para Shopping Centre, public and private schools, and parklands, you'll also benefit from easy access to the Northern Expressway, placing Adelaide CBD within approx. 35 minutes. With vibrant green spaces, family-friendly amenities and strong community appeal, this is a smart place to call home or invest.
Offered for sale at $635,500
*Images are artist's impressions of conceptualised designs only and are intended to provide an indication of possibility. Standard turnkey inclusions apply, with options available for variations and customisations.
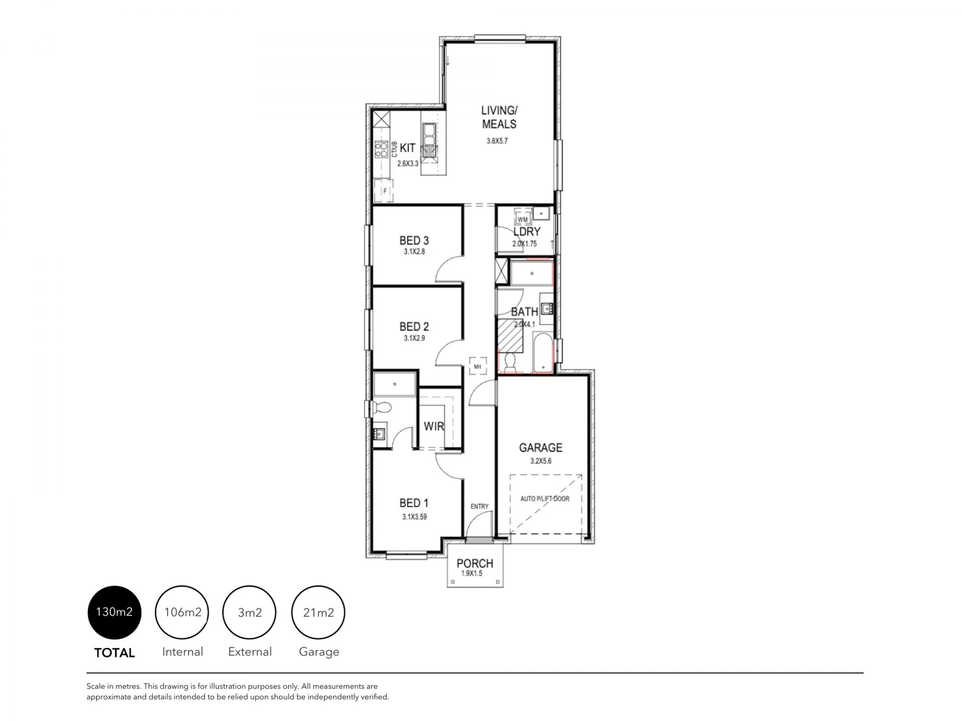
The open plan living area is ideal for everyday ease, with the primary bedroom offering a walk-in robe and private ensuite. Designed with style and functionality in mind, this future home includes 2700mm ceilings, a 5kW split system and a landscaped front and rear garden included in the fixed price.
With all the essential features taken care of, from flooring and window coverings to driveway, fencing and paths, this is a low-maintenance lifestyle you can confidently plan for.
Key Features
• House & Land Package on 270m²
• Open plan kitchen, living and meals zone
• Primary bedroom with ensuite and walk-in robe
• 2700mm ceiling height and LED downlights
• Laminate floors to main living areas; carpet to bedrooms
• 5kW split system air-conditioning to living
• Stainless steel appliances including 600mm oven
• Blinds to all windows
• Fully landscaped front and rear gardens
• Fencing, driveway, and concrete paths included
• Dedicated laundry and single garage
• 25-year structural guarantee
Perfectly suited to modern lifestyles, this growing location offers everyday convenience with strong future value. Just minutes from Munno Para Shopping Centre, public and private schools, and parklands, you'll also benefit from easy access to the Northern Expressway, placing Adelaide CBD within approx. 35 minutes. With vibrant green spaces, family-friendly amenities and strong community appeal, this is a smart place to call home or invest.
Offered for sale at $635,500
*Images are artist's impressions of conceptualised designs only and are intended to provide an indication of possibility. Standard turnkey inclusions apply, with options available for variations and customisations.
Features
- Air Conditioning
- Close to Transport
- Close to Shops
- Close to Schools
Properties Available
No associated properties found